Сдам торговое помещение, 1150 м²

мкр Кучино, ул Центральная, д. 68

1 035 000 руб.

?

$ 1 086

€ 979

900 руб./м²


1150 м²

3/3 этажей

Код объекта

111798

Предложение доступно для субагентов, авторизуйтесь

Сдам Торговое помещение, 1150 м²

Код объекта: 111798.
Тип объекта: Торговое помещение.
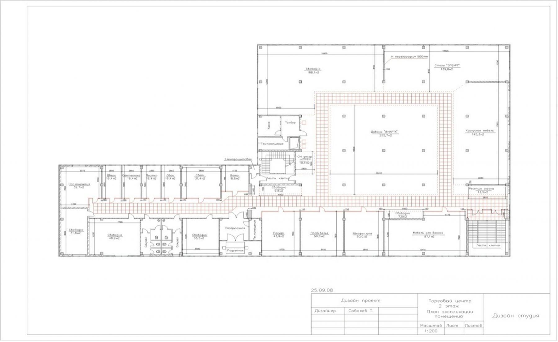
Площадь: 1150 м².
Этаж / Этажность: 3 / 3.

Описание и характеристики

Сдам 3 этаж торгового центра с грузовым лифтом

Характеристики:
- Назначение : фулфилмент, услуги, легкое производство, и т.д.
- 1 линия
- 3/3 этаж
- Общая входная группа
- Есть возможность разместить вывеску
- Погрузка, используя Запасной вход
- Доступ По общему графику
- ХВС/ГВС водоснабжение
- Санузел - Общий
- Центральное отопление
-  Вентиляция
- Кондиционер
- Максимальная мощность - 15 кВт
- Отличный ремонт
- Торговый/офисный центр
- Имеется запасной выход
- Имеется грузовой лифт
- Высота потолков 2.8 м
- Метро ст. Кучино 1 мин пешком (МЦД-4)
- Есть возможность перепланировки
- Системы безопасности: Пожарная, Охранная, Видеонаблюдение
- Коммунальные услуги входят в стоимость
- Большая парковка
- Сдаются помещения от 50 до 700 кв.м. под любой вид деятельности.

Перейти в карточку объекта в CRM: 111798.

Юрий

+7 925 739-00-37

или оставьте ваш номер, и я перезвоню в течение 30 минут

Отправляя заявку вы соглашаетесь на обработку персональных данных

1 035 000 руб.

?

$ 13 231

€ 11 239

900 руб./м²


1150 м²

3/3 этажей

Код объекта

111798

Предложение доступно для субагентов, авторизуйтесь

Юрий

+7 925 739-00-37

или оставьте ваш номер, и я перезвоню в течение 30 минут

Отправляя заявку вы соглашаетесь на обработку персональных данных

Похожие объявления

Посмотреть все похожие объявления
1/11
Код объекта: 224066.
Тип объекта: Торговое помещение.
Площадь: 600 м².
Этаж / Этажность: 1 / 3.
1/15
Код объекта: 282174.
Тип объекта: Торговое помещение.
Площадь: 363.8 м².
Этаж / Этажность: 1 / 1.
1/25
Код объекта: 221930.
Тип объекта: Торговое помещение.
Площадь: 1000 м².
Этаж / Этажность: 3 / 3.
1/25
Код объекта: 221930.
Тип объекта: Торговое помещение.
Площадь: 1000 м².
Этаж / Этажность: 3 / 3.
1/5
Код объекта: 217049.
Тип объекта: Торговый центр.
Площадь: 330 м².
Этаж / Этажность: 2 / 2.
1/5
Код объекта: 224342.
Тип объекта: Торговый центр.
Площадь: 70 м².
Этаж / Этажность: 1 / 2.
1/23
Код объекта: 224795.
Тип объекта: Помещение свободного назначения.
Площадь: 150 м².
Этаж / Этажность: -1 / 17.
1/24
Код объекта: 224788.
Тип объекта: Помещение свободного назначения.
Площадь: 330 м².
Этаж / Этажность: -1 / 17.
1/13
Код объекта: 233942.
Тип объекта: Торговое помещение.
Площадь: 34 м².
Этаж / Этажность: 1 / 3.

Не хочу искать, перезвоните мне!

Оставьте номер телефона, наш специалист свяжется с вами и поможет с подбором недвижимости!